projekte » übersicht » Vivo 2013

Name:
Vivo
Projekt-Nr:
119
Auftragsart:
Wettbewerb
Standort:
Greifensee ZH
Jahr:
2013

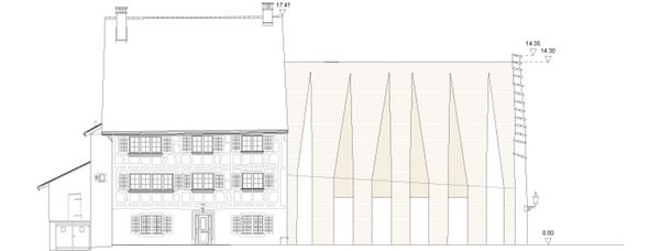
Wie das Landenberghaus vor der Zerstörung im Alten Zürich- Krieg 1444 wohl ausgesehen und welchem Nutzen es dazumal gedient haben soll ist unklar. Bekannt ist, dass es nach dem Krieg über längere Zeit als Schlossscheune gedient hat. Ob es vor dem Krieg allenfalls als Wohntrakt oder Palas der Burg genutzt worden ist, wird spekuliert. Klarheit bezüglich der Beschaffenheit der Innenfassade ist nicht vorhanden. Naheliegend wäre eine murale Fassade, da alle Bauten im Städtli in massiver oder ausgefachter Bauweise gebaut worden sind. Klar ist, dass das Gebäude an der Stadtmauer, neben dem Schloss immer eine wehrhafte Funktion innehatte. Unser Projekt baut auf der Semantik der Wehrhaftigkeit auf. So wie die Ritterrüstung auf dem Haupt des Kriegers, stülpt sich die neue Hülle des Landenberghauses schwer und nur mit spärlichen Öffnungen über den Saal des neuen Landenberghauses.

Rückbau

Die Vorsatzschale, welche beim Einbau von 1969 eingebaut worden ist, wird rückgebaut. Das hinter der Vorsatzschale vermutete romanische Bossenquaderwerk wird offen gelegt und im neuen Raumkonzept über die gesamte Fassadenhöhe sichtbar gemacht. Die bestehenden gekuppelten romanischen Rundbogenfenster sind ein integraler Bestandteil des neuen Raum- und Belichtungskonzeptes.

Tragwerk

Die Lasten der Aussenhülle, insbesondere der Dachflächen, werden über die neu eingebauten selbst tragenden Kreuzrippenträger, unabhängig von der historischen Stadtmauer abgeleitet. Die Rippen kreuzen sich dabei wie die Diagonalen in einem Rechteck. Sie Leiten die Druck- und Schubkräfte des Gewölbes auf die Pfeiler ab.

Haus im Haus

Der neue Saal wird im wahrsten Sinn als Kernstück in einer „Haus im Haus“ Konzeption unter der neuen Gebäudehülle eingebaut. Zenital belichtet und über zwei Seiten Erschlossen steht der neue Saal auf zwei Kuben und ist losgelöst von der primären Kreuzrippenkonstruktion.

Aussenhülle

Zwischen den Kreuzrippenträger formen sich die Glasbänder vom Boden bis zum First und führen das Licht lateral wie auch zenital in das innere des Baukörpers. Die neue Aussenhülle besteht aus Lehm und Lehmziegel. Die Haptik, wie auch die Farbigkeit dieses Materials verspricht eine Nähe zum Kontext und somit einen Einklang mit der historischen Stadtmauer.

Flexibilität

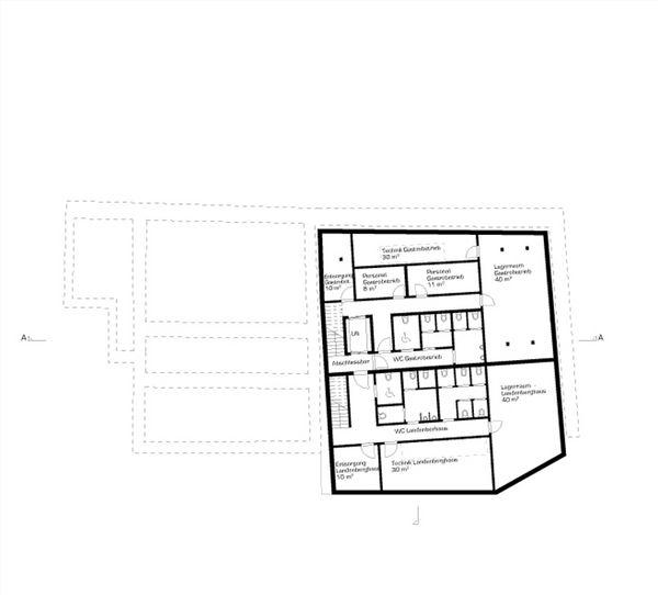
Die Höhenlage des Saals richtet sich nach dem 1. Obergeschoss des Pfarrhauses. Die Vorbereitungsräume (Requisiten, Künstlergarderoben, sowie deren WC und Duschen) sind in diesem Geschoss angeordnet und durch einen Durchbruch mit dem Saal verbunden. Die Künstler haben die Möglichkeit den Saal peripher über die gesamte „bühnenseitige“ Abwicklung zu betreten. Das „Saalfoyer“ erstreckt sich über die gesamte Saalbreite und verbindet die beiden Zugänge. Die Trennwand zum Saal lässt sich mit Schiebefenster über die gesamte Breite öffnen. 

Multifunktionalität

Der gesamte Saal ist mit flexiblen Bühnenelementen bestückt. Die Elemente können bis auf eine Höhe von 1.80 Meter erhöht werden. Dadurch können alle arten von Bühnen „modelliert“ werden. Sitzstufen können mit den flexiblen Bühnenelementen ebenfalls eingerichtet werden.