projekte
übersicht
aktuell
realisiert
privat
öffentlich
wettbewerb / studie
über uns
team
jobs
publikationen
kontakt
projekte
»
übersicht
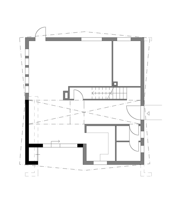
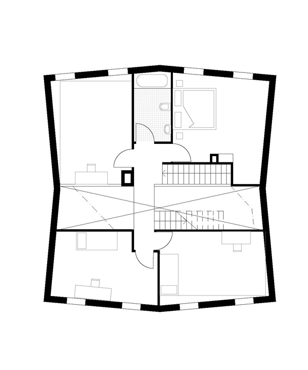
» Papillon 2013
Name:
Papillon
Projekt-Nr:
108
Auftragsart:
Privat
Standort:
Otelfingen ZH
Jahr:
2013