projekte » übersicht » Metrum 2016

Name:
Metrum
Projekt-Nr:
095
Auftragsart:
Wettbewerb, 1. Rang -realisiert-
Auftraggeber:
APK Bucher Schweiz
Standort:
Niederweningen ZH
Jahr:
2016

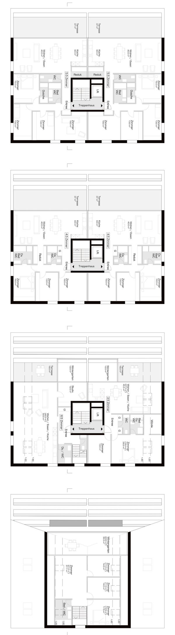
Die alternierende Anordnung der Baukörper verspricht eine maximale Freiheit der Aussenräume und demzufolge eine maximale Besonnungs- und Aussichtssituation sämtlicher Wohnungen. Zwischen den Häusern sind runde „Parkinseln“ mit unterschiedlicher Ausstattung angeordnet. Die Inseln werden als Spielinseln, als Grillinseln, als Leseinseln oder als Waldinseln mit Zwergbäumen zum spielen ausgestattet. Parkartig führt eine innere Fusswegerschliessung von Haus zu Haus und von Parkinsel zu Parkinsel. Damit soll ein weitläufiger Austausch der Bewohner erzielt werden. Indem die beiden Haustypen in einer regellosen und willkürlichen Abfolge angeordnet sind, soll die gesamte Anlage eine suburbane und dörfliche Stimmung ausstrahlen.

Nebst der ortsbaulichen Konzeption, basiert die grundlegende Projektidee auf einer Maximierung der solaren Gewinne. Um dies zu erreichen sind die südlichen Dachflächen /Fassaden auf den Sonnenstand des Winterhalbjahres ausgerichtet. Die Decken sind so zurückgestaffelt, damit die winterliche Sonne (Tiefstand 21. Dez.: 18°) möglichst tief in den Baukörper einfallen kann, um so die höchst möglichen solaren Gewinne zu erzielen. Damit sich der Baukörper im Sommerhalbjahr (Equinox 21. März bis 21.Sept.: 43°) nicht aufheizt, ist die Deckengeometrie so ausgebildet, dass die Mittagssonne vom Frühling bis Herbst nicht mehr in den Raum eintreffen kann und somit der Raum nicht unnötig aufgeheizt wird.