projekte
übersicht
aktuell
realisiert
privat
öffentlich
wettbewerb / studie
über uns
team
jobs
publikationen
kontakt
projekte
»
übersicht
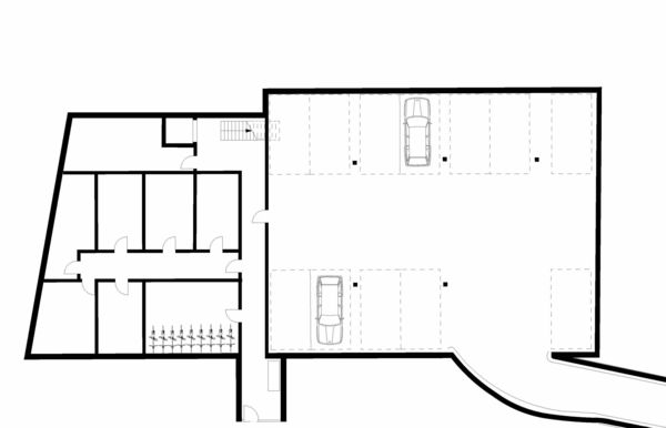
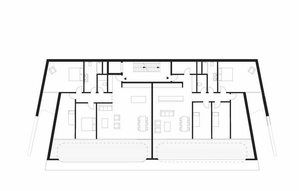
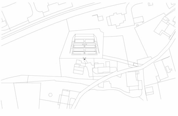
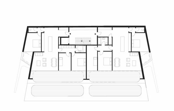
» Camouflage 2017
Name:
camouflage
Projekt-Nr:
148
Auftragsart:
Privat
Standort:
Birrwil
Jahr:
2017